ZOOM architecten

Type gebouw
Openbaar
Team
ZOOM architecten
Callebaut architecten
Bast architects & engineers
Opdrachtgever
Provincie Oost-Vlaanderen
Locatie
Bus 1 - Eeklo
bouwkost
2,8 mln Euro incl. BTW

project HUYS.

Het ontwikkelen van een integraal masterplan voor het streekcentrum de Huysmanhoeve. We verbouwen twee bestaande volumes en bouwen twee nieuwe volumes volgens de krachtlijnen van het masterplan voor deze historische site.

De Huysmanhoeve in Eeklo is met zijn erfgoed, geschiedenis en natuur een zeer aantrekkelijke plek om te vertoeven. De provincie Oost-Vlaanderen zet hierop en wil de site tot streekcentrum uitbouwen. Onze visie vertrekt van de eigenheid van een omwalde hoeve waarbinnen een flexibel en polyvalent ontmoetingscentrum ontwikkeld wordt.

Maquettes: Alejandro Hidalgo Santana
Visualisaties: Els Lenaerts

het verhaal

Het groot-goed te eeklo

Een citaat uit Appeltjes van meetjesland:

“Hoeven liggen naast elkaar langs straten met een boomgaard tussenin, de akkers liggen erachter in rechthoekige stroken. Grote hofsteden daarentegen liggen afgelegen, afgezonderd van de hoofwegen, te midden van de akkers die tot het hof behoren. Zij zijn slechts bereikbaar langs een landweg of een dreef."

Eén van die hofstedes is de Huysmanshoeve. Poortgebouw en woonhuis zijn beschermd als monument, het erf met de dreef, omwalling, dienstgebouwen en boomgaard zijn beschermd als dorpsgezicht. De site kent een dubbele omwalling, waarvan de buitengracht gedempt is en bijgevolg onzichtbaar van op het land. 

Sinds de 13e eeuw tot middden 20e-eeuw vormde deze omwalling een gesloten systeem met twee poorten. Een zuidelijke poort met poortgebouw en dreef als hoofdtoegang en een kleinere noordelijke poort met wegenis als tweede toegang. Deze diensttoegang diende vooral om de achterliggende akkers en weilanden te ontsluiten. 

In de laatste halve eeuw kwam het nut van een gesloten en controleerbaar systeem steeds meer te vervallen. Vooral in het noorden was het gevoel van omsloten omwalling verdwenen. 

vierkantshoeve

In het zuiden betreed je de site via de toegangsweg onder het poortgebouw. De varkenstal en zijgevel van de hoevewoning verwelkomen je in een ommuurd pré-hof voor het eigenlijke binnenhof. We creëeren een gelijkwaardig binnenkomen aan de overkant van de site en kopiëren de varenstal daar als nieuwe Keet.

Eenzelfde strategie wordt gehanteerd voor een nieuwe annex links van de dwarsschuur, het Schuurtje. De zuid-oostelijke hoek van de site wordt nu gevormd door de hoevewoning samen met een sanitair gebouwtje dat hier tegenaan is gebouwd. Op een gelijkaardige manier sluit de inplanting van de nieuwe annex de gebouwcirkel in de noord-westelijke hoek.  

De inplanting van deze twee nieuwe gebouwen versterkt de gelsoten erfstructuur.  Het verschil tussen het 'semi-verharde binnenhof' en het ‘zachte buitenhof' wordt bestendigd. Bestaande zichtassen behouden de beleving op van het erf.

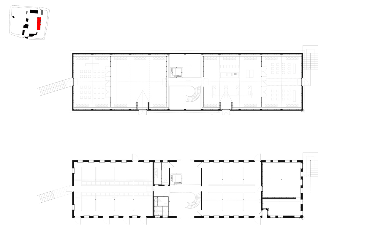
restauratie van de dwarsschuur

De bestaande dwarsschuur zal de nieuwe cafetaria herbergen. Het karakter van de schuur met zijn gelaagdheden blijft behouden.  De karaktervolle houten spantenstructuur wordt gerestaureerd, samen met het volledige exterieur.

In functie van het nieuwe programma worden in hoofdzaak 2 nieuwe elementen toegevoegd. Deze objecten zijn duidelijk leesbaar als nieuwe ingrepen in de oude dwarsschuur:

1. De schuur wordt door een glazen wand in stalen schrijnwerk opgedeeld in een geconditioneerde binnenruimte en een overdekte buitenruimte. Een architecturaal volume op twee manieren geactiveerd. 

2. een nieuwe sculpturale schouw bundelt alle nieuwe technieken en voorzieningen. De materialisatie is duidelijk anders dan de reeds aanwezige elementen in de dwarsschuur. Ze breekt door het dak en communiceert interne herbestemming naar buiten. 

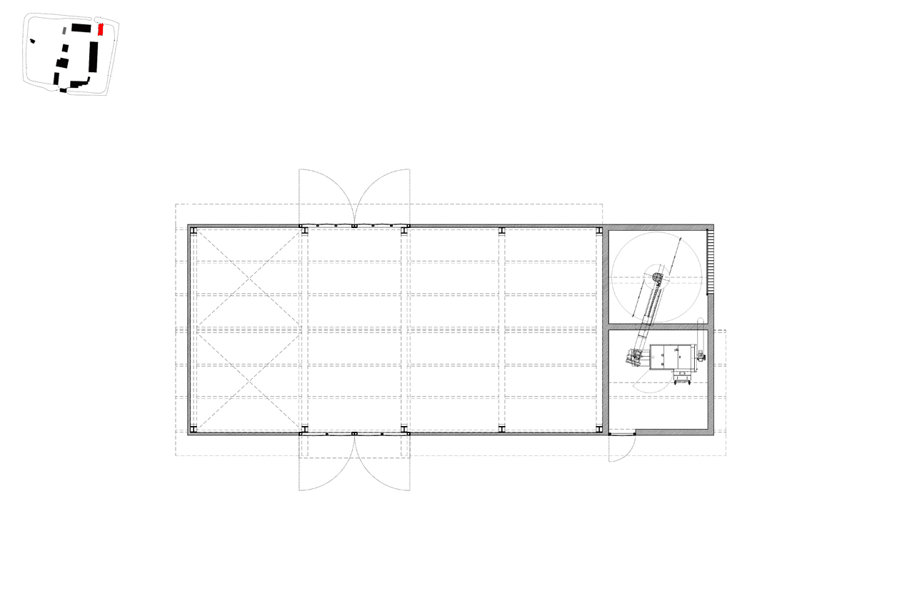
tweemaal nieuwbouw

Het Schuurtje als nieuwe annex bij de dwarsschuur is een open staalstructuur waar twee geconditioneerde volumes als sanitaire cellen in staan. De nieuwbouw is qua schaal, dakvorm en inplanting gebaseerd op de reeds aanwezige gebouwen op de site, maar is duidelijk leesbaar als een nieuw object door zijn materialisatie. 

De Keet is ontworpen als copy en spiegeling van de bestaande varkenstal tegen het zudielijke poortgebouw. Deze open schuur fungeert als nieuwe poortgebouw voor het binnekomen langs de noordelijke kant. Het biedt plaats aan de nieuwe houtsnipperkachel en bevat opbergruimte voor CSA (Community Supported Agriculture). Het voorziet de site van duurzamen lokale warmte, vandaar het grote schouwvolume. 

De structuur van de Keet is in essentie dezelfde als deze van het Schuurtje.  Er wordt echter bewust gekozen om beide gebouwen een andere kleur te geven: het schuurtje wordt rood gelakt om aan te sluiten bij de dwarsschuur, terwijl het metaal in de keet zijn natuurlijke kleur behoudt.

zin in meer?

bekijk deze projecten