ZOOM architecten

Type gebouw
uitbreiding woning, zwemvijver en tuinpaviljoen
Team
ZOOM-architecten
Locatie
De Populierkens 11
2350 Vosselaar
Oppervlakte
zwemvijver: 122m2
tuinpaviljoen: 42 m2

Opdrachtgevers vroegen bescherming tegen de zon aan hun woning en een kantoor met nieuwe zwemvijver
De vijver zorgt voor de verbinding tussen verschillende elementen op de site.

Een extensie aan het woonhuis als verbinding met zwemvijver en kantoor.
Seizoenen zijn voelbaar.

het verhaal

tuinpaviljoen



In de rechter achterhoek van het perceel komt een nieuw tuinpaviljoen, strategisch geplaatst met zicht op de tuin en de vijver. Deze plek biedt rust en een directe verbinding met de natuur.

Het paviljoen zal dienen als kantoor, aangevuld met een toilet, douche, kitchenette, sauna en een multifunctionele ruimte. De constructie bestaat volledig uit een houten structuur met bijpassende gevelbekleding.

Een groot plooiraam zorgt voor licht en uitzicht. In de zomer kunnen de ramen open, waardoor binnen en buiten in elkaar overlopen – ideaal om vanuit het paviljoen zo de vijver in te duiken.

verbindende vijver

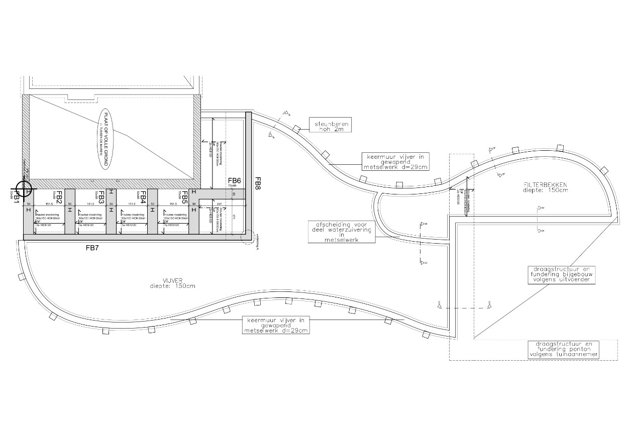
In de natuurlijke glooiing van het terrein wordt een organische zwemvijver ontworpen die zich moeiteloos inpast in het landschap. De vorm volgt de bestaande lijnen van de tuin en versterkt zo de beleving van een natuurlijke omgeving, zonder storende ingrepen.

Deze zwemvijver vormt een ruimtelijke en visuele schakel tussen de nieuwe uitbreiding van de woning en het toekomstige tuinpaviljoen. Over het water ontstaat een directe bliklijn tussen beide volumes, wat zorgt voor samenhang en openheid in het ontwerp. Een houten ponton verbindt de twee gebouwen fysiek met elkaar en biedt een uitnodigende toegang tot het zwemgedeelte.

De vijver fungeert als een natuurlijk waterbekken en draagt bij aan de ecologische kwaliteit van de tuin. De waterzuivering gebeurt via een apart filterbekken, volledig op biologische basis, zodat het water helder blijft zonder chemische middelen. Zo ontstaat een functionele en duurzame zwemomgeving, geïntegreerd in het groene karakter van het terrein.

overdekte buitenruimte


De overdekte buitenruimte is uitgevoerd in een lichte houten constructie die naadloos aansluit bij het tuinpaviljoen. Het ontwerp benadrukt openheid en transparantie, waardoor de ruimte natuurlijk integreert met de omgeving.

De open zijden zorgen voor een sterke visuele verbinding met de tuin en zwemvijver. Het ontwerp biedt bescherming tegen zon en regen, zonder het contact met de natuur te doorbreken.

Door de zorgvuldig gekozen schaal en positie vormt deze ruimte een verbindend element tussen de woning, het paviljoen en het omliggende landschap. Het respecteert de zachte reliëfverschillen van het terrein en versterkt zo de samenhang van het geheel.

zin in meer?

bekijk deze projecten