ZOOM architecten

Type gebouw
Openbaar
Team
ZOOM architecten
Callebaut architecten
Bast architects & engineers
Opdrachtgever
Provincie Oost-Vlaanderen
Locatie
Bus 1 - Eeklo
bouwkost
2,8 mln euro excl BTW

Het ontwikkelen van een integraal masterplan voor het streekcentrum de Huysmanhoeve. We verbouwen twee bestaande en bouwen twee nieuwe volumes volgens de krachtlijnen van het nieuwe masterplan voor deze historische site.

De nieuwe polyvalente ruimtes krijgen een plaats in de bestaande koestal. Deze stal werd gebouwd in 1958 en definieert, in belangrijke mate, de ruimtelijke eigenheid van het huidige erf van de site. De stal staat symbool voor het belangrijke pionierswerk en de voorbeeldfunctie die de boerderij had bij de modernisering van de landbouw in de streek gedurende de naoorlogse periode.

het verhaal

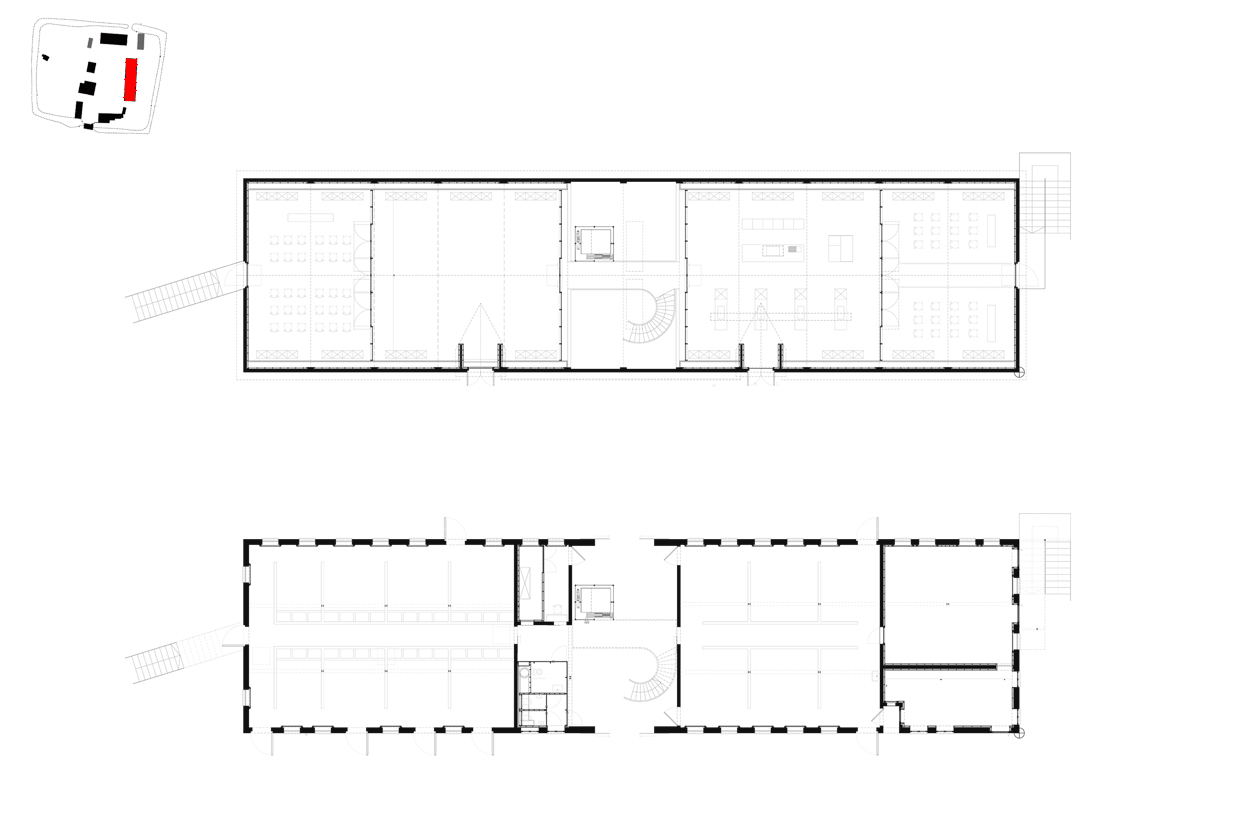
transformatie van de koestal

De koestal, gebouwd in 1958, staat symbool voor het pionierswerk en de voorbeeldfunctie die de boerderij had bij de modernisering van de landbouw in de streek gedurende de naoorlogse periode. Het onbenute dak wordt geactiveerd en herbestemd tot ruimte voor lezing, opleidingen en kookworkshops. 

We knippen de verdiepingsvloer centraal in het gebouw ter hoogte van de inrijpoort weg. Hier integreren we een nieuwe interne verticale circulatie. Twee buitentrappen als armen op de kopse zijdes van het gebouw. Deze laten het toe de verdieping flexibel te gebruiken.

De bestaande structuur vormt de basis voor de open inrichting van het plan. Er worden 4 nieuwe glazen wanden ingebracht tussen de verschillende leslokalen.  Deze wanden kunnen volledig worden opengezet om de ruimtes als 1 geheel te laten werken wanneer nodig.

de nieuwe liftschacht

De staalstructuur van de nieuwe liftkoker is geïnspireerd op de bestaande stalen spanten die deel uitmaken van de dakstructuur van de koestal.

Deze spanten bestaan uit L-profieltjes van verschillende afmetingen. Door de slimme manier waarop deze profielen zijn samengesteld worden de sterkte-karakteristieken van de afzonderlijke L-profielen maximaal benut. Het gevolg is een zeer slanke structuur die de verdieping van de koestal een elegante uitstraling geven ondanks de industriële bouwmethode.

De nieuwe liftkoker is op een gelijkaardige manier opgebouwd. We hebben in samenwerking met de ingenieur stabiliteit een structuur ontworpen die samengesteld is uit L-profieltjes. Het geheel wordt wit gelakt zodat de koker duidelijk leesbaar wordt als een nieuw object in de bestaande koestal

zin in meer?

bekijk deze projecten